Wunderschöne 2-Zimmerwohnung mit Balkon in U-Bahn-Nähe

1160 Wien | Wien

Beschreibung

3 Jahre befristet, 4 Monatsmieten Kaution

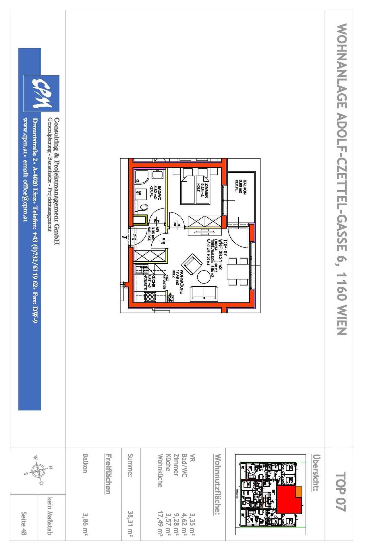
- 2 Zimmer und 4m² Balkon
- Komplettküche mit E-Geräten
- Parkettböden, verfliestes Bad mit WC
- Garagenplatz im Haus möglich
- gute Infrastruktur (U3 Kendlerstraße, Straßenbahn 10, Einkaufsmöglichkeiten, Schulen)

 

Lassen auch Sie sich von dieser Neubauwohnung überzeugen und vereinbaren Sie einen unverbindlichen Beratungs- und Besichtigungstermin per E-Mail unter office@aswimmo.at

 

Der Immobilienmakler erklärt, dass er – entgegen dem in der Immobilienwirtschaft üblichen Geschäftsgebrauch des Doppelmaklers – einseitig nur für den Vermieter tätig ist.

Ausstattungs­beschreibung

Fliesen, Parkett, Gas, Zentralheizung, Wohnküche / offene Küche, Personenaufzug, Badewanne

Grundriss

Fakten

Objektnummer:
11697
Objekttyp:
Wohnung
Balkon:
1
Balkonfläche:
4 m²
Wohnfläche:
38 m²
Zimmer:
2
Badezimmer:
1
Stockwerk:
2. Etage
Baujahr:
2009
Neubau:
Ja
Zustand:
Neuwertig
Verfügbarkeit:
Verfügbar

Preisdetails

Gesamtmiete:
799,00 €
Nettomiete:
638,05 €
Betriebskosten netto:
88,31 €
Monatliche Kosten USt.:
72,64 €
Umsatzsteuer:
72,64 €
Kaution:
3.196,00 €
Provision:
Gemäß Erstauftraggeberprinzip bezahlt der Abgeber die Provision.

Ausstattungen

Boden:
Fliesen, Parkett
Fahrstuhl
Wohnküche / offene Küche
Bad:
Badewanne
Zentralheizung

Energieeffizienz

Energieausweisart:
Energiebedarfs­ausweis
HWB:
52,6 kWh/(m²*a)
HWB Klasse:
C
fGEE:
1
fGEE Klasse:
B

Ansprech­partner

ASW Immobilien Service & Consulting GmbH Firmensitz Wien

ASW Immobilien Service & Consulting GmbH Firmensitz Wien