Tolle 2-Zimmerwohnung mit großer Terrasse in zentraler Lage - befristet vermietet

8010 Graz | Steiermark

Beschreibung

Die im Jahr 2010 errichtete Wohnanlage besteht aus vier Gebäuden, die durch eine gemeinsame Tiefgarage miteinander verbunden sind. Die Häuser verfügen über maximal vier Obergeschosse mit Lift und fügen sich harmonisch in die urbane Umgebung ein.

Jede Wohnung verfügt über eine moderne, möblierte Küche inklusive E-Geräten, sowie ein stilvoll ausgestattetes Badezimmer. Für zusätzlichen Stauraum sorgt ein eigenes Kellerabteil, das sich bequem im 1. Kellergeschoss befindet. Alle Wohnungen sind mit großzügigen Terrassen ausgestattet, die viel Freiraum im Freien bieten. Besonders hervorzuheben sind die fünf Penthouse-Wohnungen, die durch großzüge Grundrisse und herrliche Ausblicke überzeugen.

Grünflächen in den schönen Innenhöfen schaffen eine angenehme Atmosphäre und bieten Raum zur Erholung – ideal für Familien, Paare und alle, die Wert auf zeitgemäßes Wohnen mit hoher Lebensqualität legen.

Die Liegenschaft bietet ein Zuhause zum Wohlfühlen – mitten in Graz und doch im Grünen.

Diese schöne 3-Zimmerwohnung in einer sehr zentral gelegenen Wohnsiedlung im Bezirk Geidorf steht zum Verkauf:
Die Wohnung ist noch bis 31.05.2026 zu einem Nettomietzins von € 606,93 vermietet.

- Wohn-/Essbereich mit Komplettküche inkl. E-Geräten
- Schlafzimmer
- großzügiges Badezimmer mit Dusche, WC und Waschmaschinenanschluss
- kleiner Abstellraum im Vorraum
- großzügige, sonnige Terrasse

Achtung: Bei den Fotos handelt es sich um Musterfotos einer gleich geschnittenen Wohnung in einem anderen Stockwerk. Farbe der Küche kann abweichen.

Ein Stellplatz in der hauseigenen Tiefgarage ist verpflichtend anzukaufen.
Es handelt sich um ebene Stellplätze (Kaufpreis ab € 16.000,–)

Lassen auch Sie sich von dieser Neubauwohnung überzeugen und vereinbaren Sie einen unverbindlichen Beratungs- und Besichtigungstermin per E-Mail unter alexander.sigon@aswimmo.at
Wir möchten höflich darauf hinweisen, dass im Falle eines Kaufs eine ortsübliche Maklerprovision zu bezahlen ist.

Wir weisen darauf hin, dass zwischen dem Vermittler und dem zu vermittelnden Dritten ein familiäres oder wirtschaftliches Naheverhältnis besteht.

Der Vermittler ist als Doppelmakler tätig.

Ausstattungs­beschreibung

Wohnküche / offene Küche, Bad mit Fenster, Dusche, Fernwärme

Sonstige Angaben

Doppeltätigkeit/Naheverhältnis
Wir weisen Sie höflich darauf hin, dass wir kraft bestehenden Geschäftsgebrauchs als Doppelmakler tätig sind. Weiters möchten wir Sie höflich auf bestehende wirtschaftliche und familiäre Naheverhältnisse hinweisen. Ein bestehendes wirtschaftliches Naheverhältnis ergibt sich aus regelmäßiger geschäftlicher Verbindung.

 

Widerrufsbelehrung und Rücktrittsrechte bei Fernabsatz- und Außergeschäftsraum-Verträgen
Der Interessent wird informiert, dass für einen Verbraucher bei Abschluss des Maklervertrags außerhalb der Geschäftsräume des Maklers oder ausschließlich über Fernabsatz gem. § 11 FAGG ein Rücktrittsrecht von dieser Vereinbarung binnen 14 Tagen besteht. Die Rücktrittsfrist beginnt mit dem Tag des Vertragsabschlusses. Die Abgabe der Widerrufserklärung kann unter Verwendung des beigestellten Widerrufsformulars erfolgen, ist aber an keine Form gebunden.
Wenn der Makler vor Ablauf dieser vierzehntägigen Rücktrittsfrist vorzeitig tätig werden soll (zB Übermittlung von Detailinformationen, Vereinbarung eines Besichtigungstermins), bedarf es einer ausdrücklichen Aufforderung durch den Interessenten, der damit – bei vollständiger Vertragserfüllung innerhalb dieser Frist – sein Rücktrittsrecht verliert. 
Als vollständige Dienstleistungserbringung des Immobilienmaklers genügt aufgrund eines abweichenden Geschäftsgebrauchs die Namhaftmachung der Geschäftsgelegenheit, insbesondere sofern vom Interessenten keine weiteren Tätigkeiten des Maklers gewünscht oder ermöglicht werden. In diesem Fall kann der Maklervertrag nicht mehr widerrufen werden und ist Grundlage eines Provisionsanspruches, wenn es in der Folge zum Abschluss eines Rechtsgeschäftes über eine vom Immobilienmakler namhaft gemachte Geschäftsgelegenheit kommt. 
Im Fall eines Rücktritts nach § 11 FAGG verpflichtet sich der Verbraucher, von den gewonnenen Informationen keinen Gebrauch zu machen.

Lage und Verkehrs­anbindung

Das Objekt liegt im beliebten Bezirk Geidorf, einer der gefragtesten Wohngegenden von Graz.
Die zentrale, aber ruhige Lage bietet eine perfekte Anbindung an Bus und Straßenbahn sowie kurze Wege zu WIFI Steiermark, FH Campus 02 und dem Hansa Privatklinikum.
Außerdem ist eine schnelle Verbindung ins Stadtzentrum sowie zu allen wichtigen Einrichtungen gegeben.
Der Schlossberg und die Murpromenade befinden sich ganz in der Nähe und laden zu vielfältigen Freizeitaktivitäten ein.
Geidorf überzeugt mit hoher Lebensqualität, grüner Umgebung und urbanem Flair – ideal für Wohnen mit Komfort und Lebensnähe.

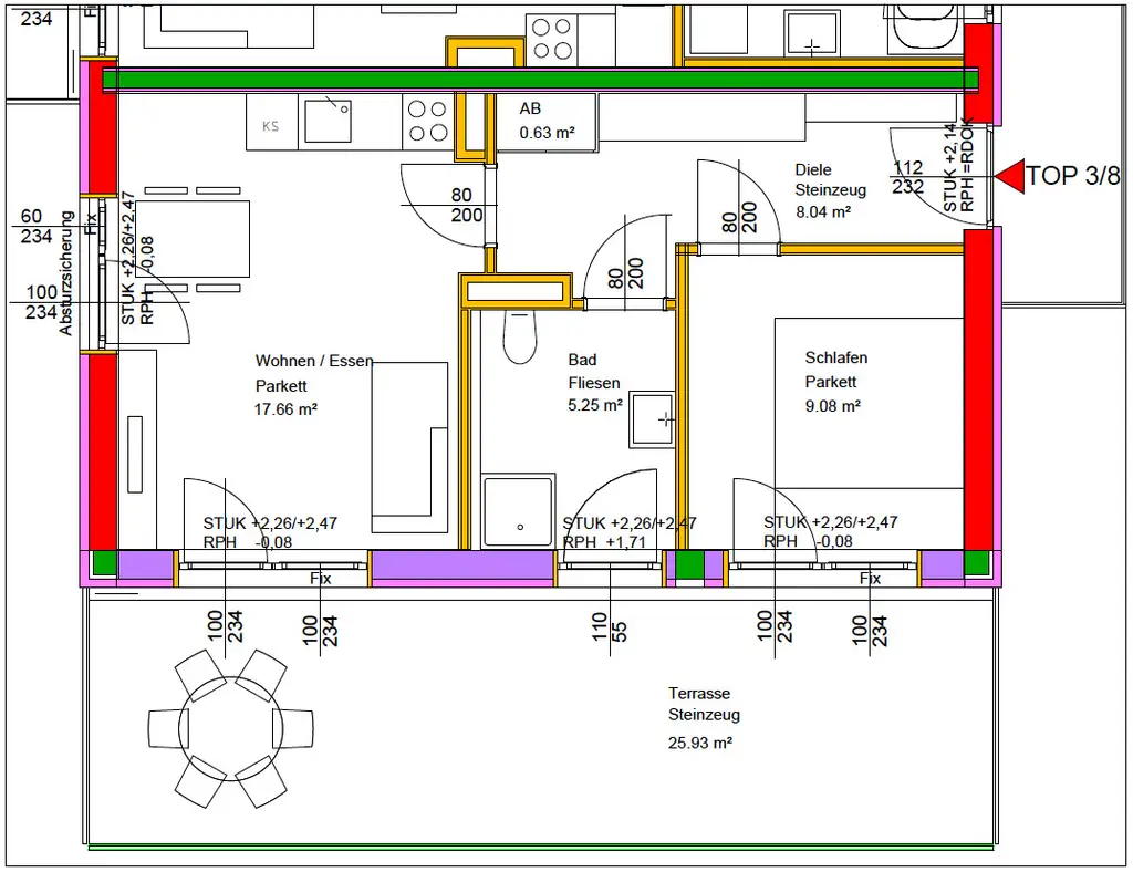
Grundriss

Fakten

Objektnummer:
11805
Objekttyp:
Wohnung
Terrasse:
1
Terrassenfläche:
25,93 m²
Keller Fläche:
2,39 m²
Wohnfläche:
40,66 m²
Zimmer:
2
Badezimmer:
1
Toilette:
1
Stockwerk:
1. Etage
Baujahr:
2010
Zustand:
Gepflegt
Verfügbarkeit:
Verfügbar

Preisdetails

Kaufpreis:
184.000,00 €
Betriebskosten netto:
146,87 €
Reparaturrücklage netto:
47,05 €
Monatliche Kosten USt.:
14,69 €

Ausstattungen

Wohnküche / offene Küche
Bad:
Dusche

Energieeffizienz

Energieausweisart:
Energiebedarfs­ausweis
Gültig bis:
09.01.2032
HWB:
60 kWh/(m²*a)
HWB Klasse:
C
fGEE:
1,02
fGEE Klasse:
C

Ansprech­partner

Alexander Sigon

Alexander Sigon

Prokurist