Tolle 2-Zimmerwohnung in zentraler Lage - befristet vermietet

1150 Wien | Wien

Beschreibung

Das im Jahr 2013 fertiggestellte Gebäude besteht aus einem Kellergeschoss, einem Erdgeschoss, vier Obergeschossen und zwei Dachgeschossen. 

Im Kellergeschoss befindet die Garage mit 26 KFZ-Abstellplätzen (Stapelparker). Außerdem sind der Parteienkeller und der Heizraum untergebracht. Im Erdgeschoss sind weitere 6 KFZ-Abstellplätze (Einzelstellplätze), der Müllraum, weitere Parteienkeller, ein Kinderwagen- und Fahrradabstellraum, ein Technikraum und zwei Wohnungen angeordnet. In den Obergeschossen und den Dachgeschossen sind Wohnungen bzw. Büros (straßenseitig) errichtet. Die Wohnungen in den Dachgeschossen sind als Maisonettewohnungen ausgebildet.

Das Haus ist in Massivbauweise errichtet und hat eine einfach gegliederte Vollwärmeschutz-Fassade. Den Wohnungen im 1. und 4. Obergeschoss sind teilweise Terrassen zugeordnet, die Maisonettewohnungen in den Dachgeschossen sind alle mit Terrassen ausgestattet. Die Wohnungen sind mit Parkettböden in den Wohn-/und Essräumen ausgestattet. Eine vollständig möblierte Küche mit E-Geräten komplettiert das Angebot. Den Wohnungen ist zusätzlich ein eigenes Kellerabteil zugeordnet.

 

Diese schöne 2-Zimmerwohnung in einem sehr zentral gelegenen Gebäude im 15. Bezirk steht zum Verkauf:
Die Wohnung ist noch bis 31.03.2027 zu einem Nettomietzins von € 594,76 vermietet.

- großzügiger Wohn-/Essbereich 
- Komplettküche inkl. E-Geräten inkl. kleinem Abstellraum
- 1 Schlafzimmer
- Badezimmer mit Badewanne, WC und Waschmaschinenanschluss
- großzügiger Vorraum/Eingangsbereich mit Abstellraum

Achtung: Bei den Fotos handelt es sich um Musterfotos einer gleich geschnittenen Wohnung in einem anderen Stockwerk. Farbe der Küche kann abweichen.


Ein Stellplatz in der hauseigenen Tiefgarage ist verpflichtend anzukaufen.
Es handelt sich um Stapelparkplätze (Kaufpreis ab € 15.000,–)

Lassen auch Sie sich von dieser Neubauwohnung überzeugen und vereinbaren Sie einen unverbindlichen Beratungs- und Besichtigungstermin per E-Mail unter r.lakovsek@aswimmo.at
Wir möchten höflich darauf hinweisen, dass im Falle eines Kaufs eine ortsübliche Maklerprovision zu bezahlen ist.

Wir weisen darauf hin, dass zwischen dem Vermittler und dem zu vermittelnden Dritten ein familiäres oder wirtschaftliches Naheverhältnis besteht.

Der Vermittler ist als Doppelmakler tätig.

Ausstattungs­beschreibung

Fliesen, Parkett, Zentralheizung, Wohnküche / offene Küche, Personenaufzug, Badewanne, Fernwärme

Sonstige Angaben

Doppeltätigkeit/Naheverhältnis
Wir weisen Sie höflich darauf hin, dass wir kraft bestehenden Geschäftsgebrauchs als Doppelmakler tätig sind. Weiters möchten wir Sie höflich auf bestehende wirtschaftliche und familiäre Naheverhältnisse hinweisen. Ein bestehendes wirtschaftliches Naheverhältnis ergibt sich aus regelmäßiger geschäftlicher Verbindung.

 

Widerrufsbelehrung und Rücktrittsrechte bei Fernabsatz- und Außergeschäftsraum-Verträgen
Der Interessent wird informiert, dass für einen Verbraucher bei Abschluss des Maklervertrags außerhalb der Geschäftsräume des Maklers oder ausschließlich über Fernabsatz gem. § 11 FAGG ein Rücktrittsrecht von dieser Vereinbarung binnen 14 Tagen besteht. Die Rücktrittsfrist beginnt mit dem Tag des Vertragsabschlusses. Die Abgabe der Widerrufserklärung kann unter Verwendung des beigestellten Widerrufsformulars erfolgen, ist aber an keine Form gebunden.
Wenn der Makler vor Ablauf dieser vierzehntägigen Rücktrittsfrist vorzeitig tätig werden soll (zB Übermittlung von Detailinformationen, Vereinbarung eines Besichtigungstermins), bedarf es einer ausdrücklichen Aufforderung durch den Interessenten, der damit – bei vollständiger Vertragserfüllung innerhalb dieser Frist – sein Rücktrittsrecht verliert. 
Als vollständige Dienstleistungserbringung des Immobilienmaklers genügt aufgrund eines abweichenden Geschäftsgebrauchs die Namhaftmachung der Geschäftsgelegenheit, insbesondere sofern vom Interessenten keine weiteren Tätigkeiten des Maklers gewünscht oder ermöglicht werden. In diesem Fall kann der Maklervertrag nicht mehr widerrufen werden und ist Grundlage eines Provisionsanspruches, wenn es in der Folge zum Abschluss eines Rechtsgeschäftes über eine vom Immobilienmakler namhaft gemachte Geschäftsgelegenheit kommt. 
Im Fall eines Rücktritts nach § 11 FAGG verpflichtet sich der Verbraucher, von den gewonnenen Informationen keinen Gebrauch zu machen.

Lage und Verkehrs­anbindung

Das Objekt ist über die Straßenbahnlinien 52 und 58 perfekt an das öffentliche Verkehrsnetz angebunden.
Das Gebäude liegt ruhig in einer Seitengasse der äußeren Mariahilfer Straße, wodurch zahlreiche Restaurants und Einkaufsmöglichkeiten in der unmittelbaren Umgebung angesiedelt sind. Auch Ärzte, Schulen und Kinderbetreuungseinrichtungen sind fußläufig erreichbar.
Die Liegenschaft befindet sich in urbaner Lage im 15. Wiener Gemeindebezirk. Dieser Bereich wird mit dem ”Mitte 15” Stadtkonzept gerade zu einer beruhigten Zone umgebaut. In unmittelbarer Nähe ist auch der hippe Schwenden Markt mit seinen vielfältigen Marktständen.

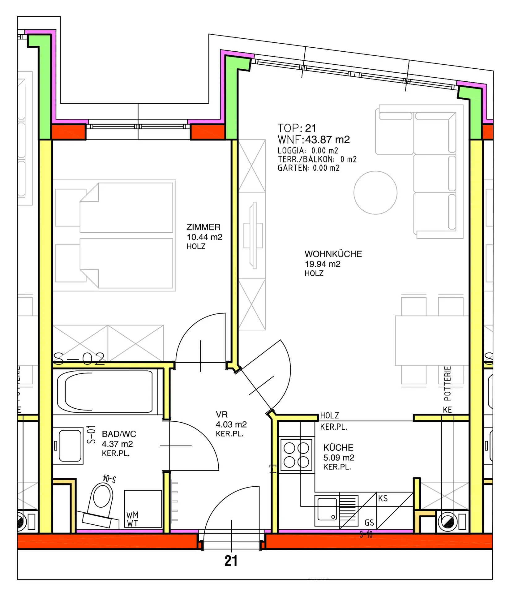
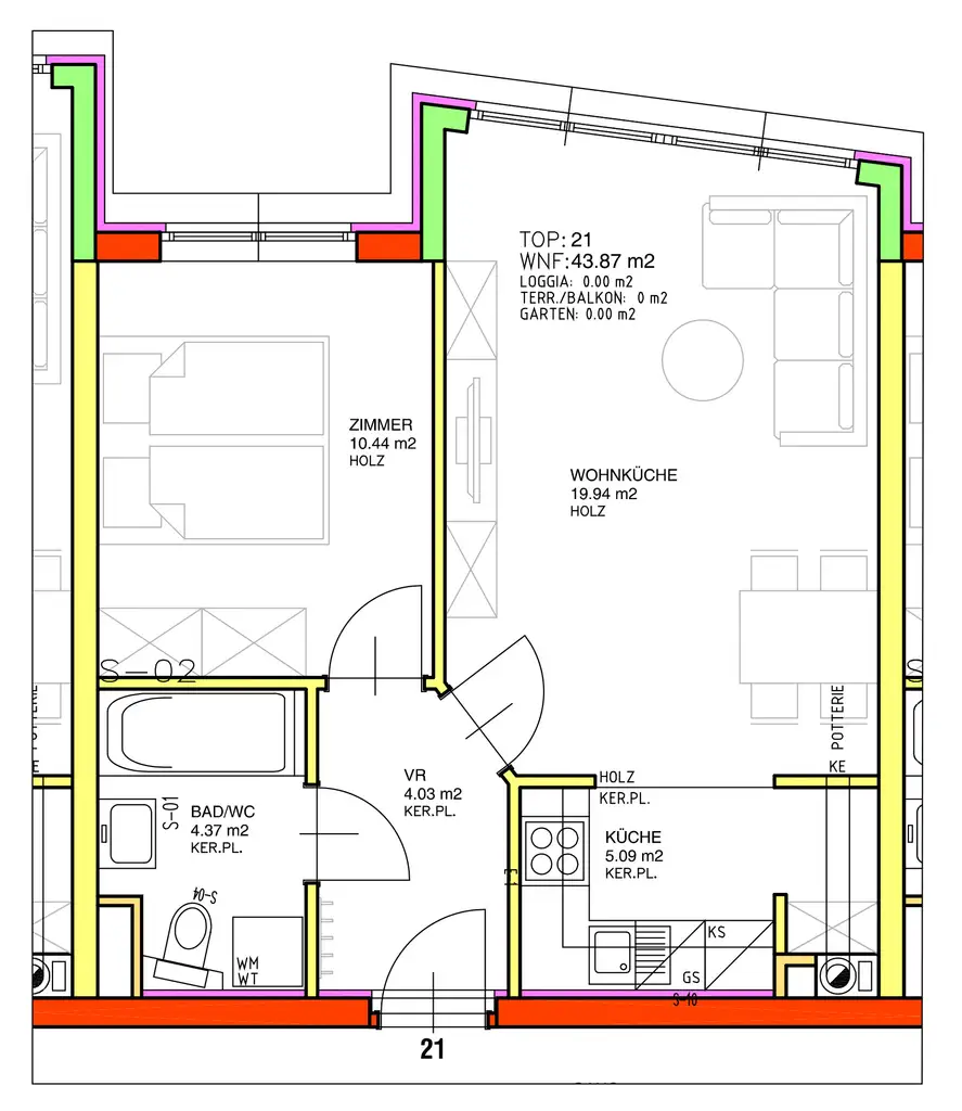
Grundrisse

Fakten

Objektnummer:
11647
Objekttyp:
Wohnung
Keller Fläche:
1 m²
Wohnfläche:
43,87 m²
Zimmer:
2
Badezimmer:
1
Toilette:
1
Stockwerk:
3. Etage
Baujahr:
2011
Neubau:
Ja
Zustand:
Gepflegt
Verfügbarkeit:
Verfügbar

Preisdetails

Kaufpreis:
229.000,00 €
Betriebskosten netto:
114,06 €
Reparaturrücklage netto:
50,03 €
Monatliche Kosten USt.:
11,41 €
Preisinfos:
Die Rücklage ist ein Vorschauwert. DIe genaue Berechnung erfolgt von der Hausverwaltung.

Ausstattungen

Boden:
Fliesen, Parkett
Fahrstuhl
Wohnküche / offene Küche
Bad:
Badewanne
Zentralheizung

Energieeffizienz

Energieausweisart:
Energiebedarfs­ausweis
Gültig bis:
27.04.2031
HWB:
37 kWh/(m²*a)
HWB Klasse:
B
fGEE:
0,99
fGEE Klasse:
B

Ansprech­partner

Roland Lakovsek

Roland Lakovsek

Immobilienberater