Tiefgaragenplätze nähe Bulgariplatz - Richard-Wagner-Straße - zu vermieten (€ 90,-)

4020 Linz | Oberösterreich

Beschreibung

2 freie Tiefgaragenabstellplätze in einem schönen Wohnhaus in sehr zentraler Lage zu vermieten.
Das Objekt befindet in der Nähe des Bulgariplatzes/Gürtelstraße

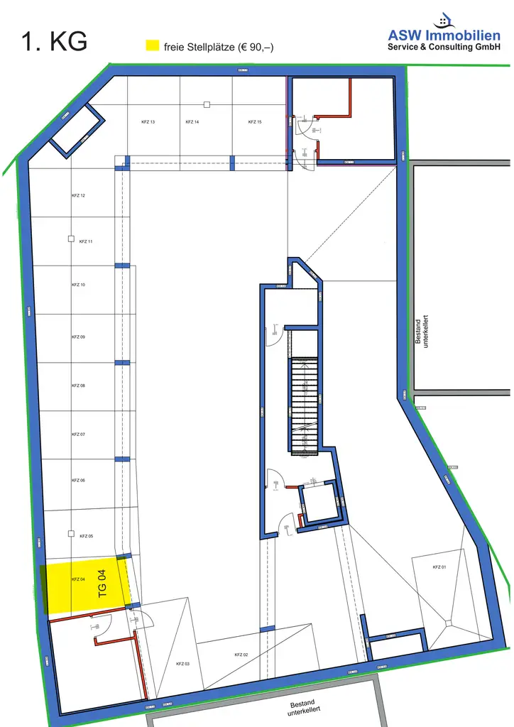
Freie Stellplätze (siehe auch TG-Plan):
1. KG: TG 04
2. KG: TG 28 

Kosten:
Gesamtmiete:
€ 90,-
Kaution: für Schlüssel (je € 75,-) und/oder Fernbedienung (je € 150,-)
Bearbeitungsgebühr: 240,- einmalig (brutto)
Finanzamtvergebührung: ca. € 32,40 einmalig

Nach Ablauf der 6 monatigen Kündigungssperre besteht eine gegenseitige Kündigungsmöglichkeit mit einer Frist von 2 Monaten.

Lassen auch Sie sich von diesem tollen Angebot überzeugen und vereinbaren Sie einen unverbindlichen Beratungs- und Besichtigungstermin per E-Mail unter e.reichart@aswimmo.at

Ausstattungs­beschreibung

Tiefgarage

Sonstige Angaben

Doppeltätigkeit/Naheverhältnis
Wir weisen Sie höflich darauf hin, dass wir kraft bestehenden Geschäftsgebrauchs als Doppelmakler tätig sind. Weiters möchten wir Sie höflich auf bestehende wirtschaftliche und familiäre Naheverhältnisse hinweisen. Ein bestehendes wirtschaftliches Naheverhältnis ergibt sich aus regelmäßiger geschäftlicher Verbindung.

Widerrufsbelehrung und Rücktrittsrechte bei Fernabsatz- und Außergeschäftsraum-Verträgen
Der Interessent wird informiert, dass für einen Verbraucher bei Abschluss des Maklervertrags außerhalb der Geschäftsräume des Maklers oder ausschließlich über Fernabsatz gem. § 11 FAGG ein Rücktrittsrecht von dieser Vereinbarung binnen 14 Tagen besteht. Die Rücktrittsfrist beginnt mit dem Tag des Vertragsabschlusses. Die Abgabe der Widerrufserklärung kann unter Verwendung des beigestellten Widerrufsformulars erfolgen, ist aber an keine Form gebunden.
Wenn der Makler vor Ablauf dieser vierzehntägigen Rücktrittsfrist vorzeitig tätig werden soll (zB Übermittlung von Detailinformationen, Vereinbarung eines Besichtigungstermins), bedarf es einer ausdrücklichen Aufforderung durch den Interessenten, der damit – bei vollständiger Vertragserfüllung innerhalb dieser Frist – sein Rücktrittsrecht verliert. 
Als vollständige Dienstleistungserbringung des Immobilienmaklers genügt aufgrund eines abweichenden Geschäftsgebrauchs die Namhaftmachung der Geschäftsgelegenheit, insbesondere sofern vom Interessenten keine weiteren Tätigkeiten des Maklers gewünscht oder ermöglicht werden. In diesem Fall kann der Maklervertrag nicht mehr widerrufen werden und ist Grundlage eines Provisionsanspruches, wenn es in der Folge zum Abschluss eines Rechtsgeschäftes über eine vom Immobilienmakler namhaft gemachte Geschäftsgelegenheit kommt. 
Im Fall eines Rücktritts nach § 11 FAGG verpflichtet sich der Verbraucher, von den gewonnenen Informationen keinen Gebrauch zu machen.

Lage und Verkehrs­anbindung

nähe Bulgariplatz, Gürtelstraße

Grundrisse

Fakten

Objektnummer:
10894
Objekttyp:
Parken
Stockwerk:
1. KG
Baujahr:
2014
Neubau:
Ja
Zustand:
Neuwertig
Verfügbarkeit:
Verfügbar

Preisdetails

Gesamtmiete:
90,00 €
Nettomiete:
64,00 €
Betriebskosten netto:
11,00 €
Monatliche Kosten USt.:
15,00 €
Umsatzsteuer:
15,00 €
Preisinfos:
Einmalige Bearbeitungsgebühr brutto € 240,–, einmalige Finanzamtvergebührung ca. € 32,40,–
Kaution:
Schlüssel: € 75 Fernbedienung: € 150

Ausstattungen

Tiefgarage
Parkplatz

Energieeffizienz

Energieausweisart:
Energiebedarfs­ausweis
Gültig bis:
08.08.2023
HWB:
23,39 kWh/(m²*a)
HWB Klasse:
A
fGEE:
0,81
fGEE Klasse:
A

Ansprech­partner

Elisa Reichart

Elisa Reichart

Marketing & Grafik