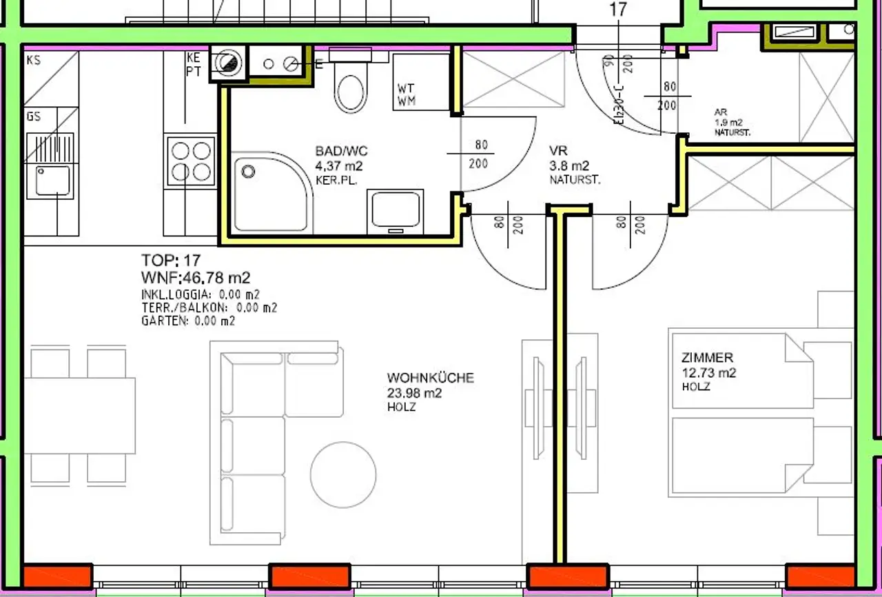
Plan

Helle 2-Zimmer Neubauwohnung Nähe U4 Längenfeldgasse

1150 Wien | Wien

Beschreibung

- 2 Zimmer
- Exklusive Ausstattung mit Parkettböden, hochwertiges Badezimmer, Abstellraum
- exquisite DAN-Küche inkl. AEG-Geräten 
- Garagenplatz im Haus möglich
- Sehr gute Infrastruktur (U4 Längenfeldgasse, Bus 12A)

 

Lassen auch Sie sich von dieser Neubauwohnung überzeugen und vereinbaren Sie einen unverbindlichen Beratungs- und Besichtigungstermin per E-Mail unter office@aswimmo.at

 

Der Immobilienmakler erklärt, dass er – entgegen dem in der Immobilienwirtschaft üblichen Geschäftsgebrauch des Doppelmaklers – einseitig nur für den Vermieter tätig ist.

Ausstattungs­beschreibung

Fliesen, Parkett, Fernwärme, Wohnküche / offene Küche, Personenaufzug, Dusche, Fernwärme

Fakten

Objektnummer:
11866
Objekttyp:
Wohnung
Wohnfläche:
46,78 m²
Zimmer:
2
Badezimmer:
1
Stockwerk:
1. Etage
Baujahr:
2012
Neubau:
Ja
Zustand:
Neuwertig
Verfügbarkeit:
Verfügbar

Preisdetails

Gesamtmiete:
875,00 €
Nettomiete:
664,47 €
Betriebskosten netto:
130,98 €
Monatliche Kosten USt.:
79,55 €
Umsatzsteuer:
79,55 €
Kaution:
3.500,00 €
Provision:
Gemäß Erstauftraggeberprinzip bezahlt der Abgeber die Provision.

Ausstattungen

Boden:
Fliesen, Parkett
Fahrstuhl
Wohnküche / offene Küche
Bad:
Dusche
Fernwärme

Energieeffizienz

Energieausweisart:
Energiebedarfs­ausweis
HWB:
35,8 kWh/(m²*a)
HWB Klasse:
B
fGEE:
0,71
fGEE Klasse:
A

Ansprech­partner

ASW Immobilien Service & Consulting GmbH Firmensitz Wien

ASW Immobilien Service & Consulting GmbH Firmensitz Wien