ERSTBEZUG TOP 02: Exklusives Reihenmittelhaus in absoluter Top-Lage

4073 Thalham | Oberösterreich

Beschreibung

In ruhiger Siedlungslage im begehrten, Ortsteil Thalham entsteht dieses exklusive Neubauprojekt. Gebaut werden 3 Reihenhäuser mit ca. 131–135 m² Wohnfläche, aufgeteilt auf drei Ebenen.

Das Hauptaugenmerk bei der Planung lag auf der optimalen Ausnutzung der bebaubaren Fläche und der großzügigen Gestaltung der Wohn- und Nebenräume. Vom Eingangsbereich im Kellergeschoss gelangt man zu einem abgetrennten Garderobenraum, zur Garage, einem Kellerraum sowie zum angrenzenden Haustechnikraum.

Über eine Treppe erreicht man das Erdgeschoss mit offenem Wohnkonzept. Hier finden Sie viel Platz für eine großzügige Küche, die direkt an das Esszimmer anschließt. Vom Wohnzimmer aus gelangt man über die Terrasse in den sonnigen Garten. Außerdem befindet sich im Erdgeschoss ein abgetrennter Vorraum mit Zugang zu einer Toilette sowie ein Wirtschaftsraum.

Das Obergeschoss bietet ein geräumiges Schlafzimmer mit eigenem Bad, separater Toilette und Zugang zum Balkon. Darüber hinaus gibt es ein zweites Badezimmer, eine weitere Toilette sowie zwei Kinderzimmer.

Jedes Haus verfügt über eine Garage, einen Stellplatz im Freien und einen kleinen Vorgarten. TOP 1 und  TOP 3 verfügen zusätzlich über eine zweite Terrasse, die über das Esszimmer zugänglich ist.

Exklusives Eckreihenhaus mit hochwertiger Ausstattung – Baubeginn bereits erfolgt!

Dieses modern geplante Eckreihenhaus überzeugt durch durchdachtes Raumkonzept, hochwertige Materialien und großzügige Freiflächen. Das Haus erstreckt sich über drei Ebenen und wird schlüsselfertig übergeben – die genaue Ausstattung entnehmen Sie der Bau- und Ausstattungsbeschreibung.

Raumaufteilung:

  • Eingangsgeschoss: Großzügige Diele mit angrenzenden Wirtschaftsraum, Kellerraum, Haustechnikraum und direkter Zugang zur Garage (19,73 m²). Außenstellplatz und Einfahrt (31m²).

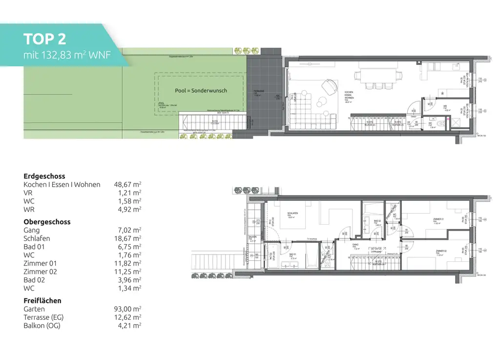
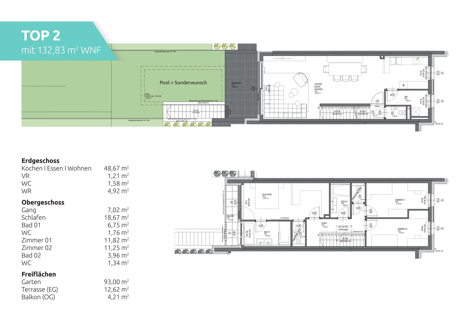
  • Erdgeschoss: Offener Wohn-, Ess- und Kochbereich (48,67 m²) mit Zugang zur Terrasse und Garten, zusätzlich WC und Wirtschaftsraum.

  • Obergeschoss: Schlafzimmer mit eigenem Bad und WC, zwei weitere Zimmer, zusätzliches Bad und WC, sowie Balkon.

Freiflächen:
Schöner Garten (93 m²), Terrasse (12,62 m²) und Balkon (4,21 m²) bieten viel Platz zum Entspannen und Genießen.

Besonderheit: Auf Wunsch kann ein Pool realisiert werden.


Details:
Eingangsgeschoss

Diele: 7,59 m²
WR: 5,79 m²
Keller: 10,89 m²
HT I ET: 8,26 m²

Garage: 19,73 m²
Vorgarten (Außenstellplatz + Einfahrt): 31,00 m² 

Erdgeschoss
Kochen I Essen I Wohnen: 48,67 m²
VR: 1,21 m²
WC: 1,58 m²
WR: 4,92 m²

Obergeschoss
Gang: 7,02 m²
Schlafen: 18,67 m²
Bad 01: 6,75 m²
WC: 1,76 m²
Zimmer 01: 11,82 m²
Zimmer 02: 11,25 m²
Bad 02: 3,96 m²
WC: 1,43 m²

Freiflächen
Garten: 93,00 m²
Terrasse (EG): 12,62 m²
Balkon (OG): 4,21 m²


Lassen auch Sie sich von dieser Neubauprojekt überzeugen und vereinbaren Sie einen unverbindlichen Beratungs- und Besichtigungstermin per E-Mail unter r.lakovsek@aswimmo.at
Wir möchten höflich darauf hinweisen, dass im Falle eines Kaufs eine ortsübliche Maklerprovision zu bezahlen ist.

Wir weisen darauf hin, dass zwischen dem Vermittler und dem zu vermittelnden Dritten ein familiäres oder wirtschaftliches Naheverhältnis besteht.

Der Vermittler ist als Doppelmakler tätig.

Ausstattungs­beschreibung

Dielen, Fußbodenheizung, Bad mit Fenster, Badewanne, Dusche, Garage, Parkplatz, Luftwärmepumpe

Sonstige Angaben

Doppeltätigkeit/Naheverhältnis
Wir weisen Sie höflich darauf hin, dass wir kraft bestehenden Geschäftsgebrauchs als Doppelmakler tätig sind. Weiters möchten wir Sie höflich auf bestehende wirtschaftliche und familiäre Naheverhältnisse hinweisen. Ein bestehendes wirtschaftliches Naheverhältnis ergibt sich aus regelmäßiger geschäftlicher Verbindung.

 

Widerrufsbelehrung und Rücktrittsrechte bei Fernabsatz- und Außergeschäftsraum-Verträgen
Der Interessent wird informiert, dass für einen Verbraucher bei Abschluss des Maklervertrags außerhalb der Geschäftsräume des Maklers oder ausschließlich über Fernabsatz gem. § 11 FAGG ein Rücktrittsrecht von dieser Vereinbarung binnen 14 Tagen besteht. Die Rücktrittsfrist beginnt mit dem Tag des Vertragsabschlusses. Die Abgabe der Widerrufserklärung kann unter Verwendung des beigestellten Widerrufsformulars erfolgen, ist aber an keine Form gebunden.
Wenn der Makler vor Ablauf dieser vierzehntägigen Rücktrittsfrist vorzeitig tätig werden soll (zB Übermittlung von Detailinformationen, Vereinbarung eines Besichtigungstermins), bedarf es einer ausdrücklichen Aufforderung durch den Interessenten, der damit – bei vollständiger Vertragserfüllung innerhalb dieser Frist – sein Rücktrittsrecht verliert. 
Als vollständige Dienstleistungserbringung des Immobilienmaklers genügt aufgrund eines abweichenden Geschäftsgebrauchs die Namhaftmachung der Geschäftsgelegenheit, insbesondere sofern vom Interessenten keine weiteren Tätigkeiten des Maklers gewünscht oder ermöglicht werden. In diesem Fall kann der Maklervertrag nicht mehr widerrufen werden und ist Grundlage eines Provisionsanspruches, wenn es in der Folge zum Abschluss eines Rechtsgeschäftes über eine vom Immobilienmakler namhaft gemachte Geschäftsgelegenheit kommt. 
Im Fall eines Rücktritts nach § 11 FAGG verpflichtet sich der Verbraucher, von den gewonnenen Informationen keinen Gebrauch zu machen.

Lage und Verkehrs­anbindung

Ländliche, ruhige, sonnige exklusiv Lage
Thalham gehört zu den beliebtesten Wohngegenden von Wilhering und zeichnet sich durch erstklassige Lebensqualität sowie weitläufige Grünflächen aus. Die exklusive Lage des Objekts bietet viel Raum zur Erholung und einen direkten Zugang zur Natur.

Ländlich und dennoch stadtnah gelegen, überzeugt die Umgebung mit einer guten Infrastruktur. So erreicht man in ca. 15 Minuten mit dem Auto sowohl Leonding als auch Eferding. Die nächsten Nahversorger befinden sich rund 2 km entfernt. Die nächstgelegene LILO-Haltestelle (Kirchberg-Thürnau) ist fußläufig erreichbar.

Grundrisse

Fakten

Objektnummer:
11691
Objekttyp:
Haus
Balkon:
1
Terrasse:
1
Balkonfläche:
4,21 m²
Terrassenfläche:
12,62 m²
Keller Fläche:
10,89 m²
Wohnfläche:
132,33 m²
Grundstücksfläche:
207 m²
Gartenfläche:
93 m²
Zimmer:
5
Badezimmer:
2
Toilette:
3
Baujahr:
2026
Zustand:
Erstbezug
Verfügbarkeit:
Verfügbar

Preisdetails

Kaufpreis:
649.000,00 €

Ausstattungen

Bad:
Dusche, Badewanne
Garage
Parkplatz
Außenparkplatz
Fußbodenheizung

Energieeffizienz

Energieausweisart:
Energiebedarfs­ausweis
Gültig bis:
10.01.2032
HWB:
40 kWh/(m²*a)
HWB Klasse:
B
fGEE:
0,74
fGEE Klasse:
A

Ansprech­partner

Roland Lakovsek

Roland Lakovsek

Immobilienberater